Peace Trail Village at North Valley Friends Church
North Valley Friends Church (NVFC) and Providence have partnered to help address houseless persons in Newberg who also experience chronic health care conditions by building a cottage cluster of eight small homes. The plan to expand from the current two small homes on the church property to eight is now a reality thanks to a grant from the City of Newberg and ARPA funds. Providing temporary housing and wrap-around case management services creates the best long-lasting individual outcomes, decreases social service involvement, and encourages lasting economic recovery.
How the program works
- Guests for the program are identified using a variety of screening tools in the health care setting. Outreach specialists will provide wrap-around services, case management,
referrals, and benefit navigation like enrolling in the Oregon Health Plan. - Outreach specialists will work with guests five days per week for as long as they stay—one month to one year; this length sets our program apart and increases positive economic and public health outcomes.
- All guests are subject to a full criminal background check and sign an agreement of participation to ensure the best possible outcomes and continued success of the
program.
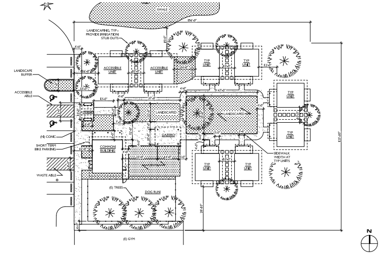
About the cottages
- Peace Trail Village will consist of eight homes, approximately 300 square feet each. They will be on foundations and connected to water, sewer, and electricity as well as have access to a laundry facility. NVFC owns and maintains the cottages and surrounding property of the village.
- The project planning has begun with a site plan and tentative agreement with the City of Newberg on water/sewer.
- Infrastructure work is expected to begin as soon as feasible, hopefully 2023. The projected total cost of $695,800 will provide the cottage homes and space for wrap-around services.
To learn more or get involved
We understand the concern some may have as we continue to work together to help some of the most vulnerable people in our community. The safety of those working with village guests and our neighbors is paramount. If you have questions about the program, please contact Leslie Murray with North Valley Friends Church at 503-538-5340 or visit northvalleyfriends.org.


